金山総合ビル(第一生命)

要相談 (要相談/坪) 管理/共益費 0円

愛知県名古屋市中区金山1丁目12-14

名古屋市営名城線「金山」駅徒歩1分

名鉄名古屋本線「金山」駅徒歩1分

価格
要相談(要相談/坪) 管理/共益費 0円
面積
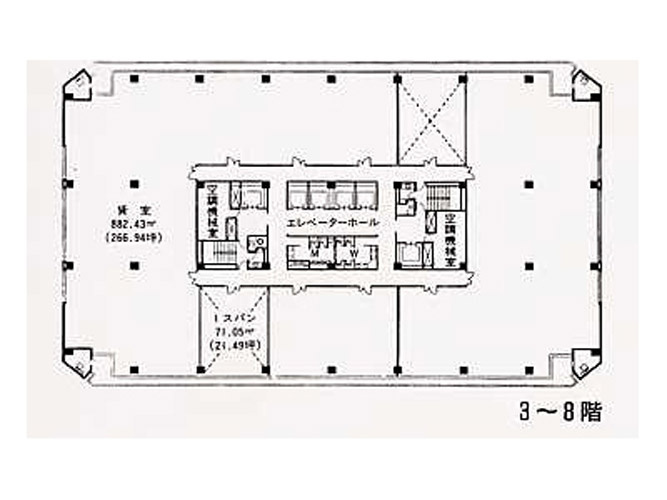
15.10坪~21.49坪(49.92㎡~71.04㎡)
所在地
愛知県名古屋市中区金山1丁目12-14
築年
1979年4月(築46年)
駐車
-
交通

名古屋市営名城線金山」駅 徒歩1分

名鉄名古屋本線金山」駅 徒歩1分

金山総合ビル(第一生命)の基本情報

物件名
金山総合ビル(第一生命)
価格
要相談(要相談/坪)
管理/共益費
0円
築年月
1979年4月(築46年)
所在地
愛知県名古屋市中区金山1丁目12-14
交通

名古屋市営名城線金山」駅 徒歩1分

名鉄名古屋本線金山」駅 徒歩1分

金山総合ビル(第一生命)の詳細情報

設備条件
  • 光ファイバー
設備(その他)
    【入居設備】:冷・暖、駐車場、エレ6基
駐車場/月額
-/35,000円 【駐車場数(台)】:0台 【天高(mm)】:2600mm 【基準階面積(坪)】:267坪 【駐車場】:あり 【駐車場確認日】:2019/11/04
取引態様
一般媒介

金山総合ビル(第一生命)で募集中の物件

  1. 8階

    21.49坪 (71.04㎡)

    要相談(要相談/坪)

  2. 8階

    15.10坪 (49.92㎡)

    要相談(要相談/坪)

近隣の物件

  1. 名古屋市中区金山1丁目

    - (56.20㎡)

    14.96万円(0.88万円/坪)

  2. 名古屋市中区正木4丁目

    - (378.90㎡)

    138.70万円(1.21万円/坪)

  3. 名古屋市中区金山1丁目

    - (47.37㎡)

    18.61万円(1.3万円/坪)

  4. 名古屋市中区正木4丁目

    - (132.46㎡)

    61.6万円(1.54万円/坪)

金山総合ビル(第一生命)

お気軽にお問い合わせください

無料お問い合わせ

株式会社T-スタイル

052-262-5755

10~18

(休:土日祝(不定休有))